
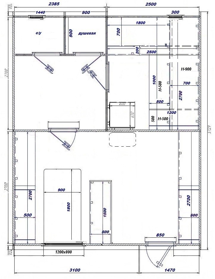
Баня «Биг Хаус» 5х6
Выберите размер:
Базовая комплектация:
- Печь TMF Саяны Витра с закрытой каменкой
- Электрика с заземлением «под ключ»
- Г-образные термо полки в парной
- Трапы во всех помещениях
- Окно ПВХ 1200х800 в зоне отдыха
- Межкомнатные двери матовые/бронза
- Окно в парной 30х30 см
- Входная теплая дверь ПВХ 1800x700
- Стол и 3 лавки в комнате отдыха
Создайте баню своей мечты
Настройте каждую деталь под себя, чтобы отдых приносил максимум удовольствия. Мы позаботились о том, чтобы выбор был легким и приятным.
Выбор планировки
Нажмите на вариант, чтобы посмотреть планировку в полный размер. Выбранная планировка будет добавлена в коммерческое предложение.


Из какого дерева сделан корпус бани?
Корпус бани из ели — классика русской бани. Доска камерной сушки (влажность 12%) не трескается, не коробится и держит тепло. Натуральный хвойный аромат наполняет парную с первой топки. Отличный выбор по соотношению цены и качества.

Как мы соберем вашу баню?
Идеальный вариант, если к месту установки может подъехать грузовая машина, а ширина бани не превышает 2.5 метра. Мы привезем уже собранную баню и установим её за 1 час.

Расположение входной двери
Современная дверь ПВХ с торца. Отличная теплоизоляция и долговечность. Идеальный выбор для тех, кто ценит практичность и не хочет беспокоиться о защите деревянной двери от влаги и перепадов температур.

Входная группа
Стандартная входная группа включает металлопластиковую дверь 1800×700 и окно 1200×800. Надёжная теплоизоляция, стеклопакет, хорошая светопроницаемость — оптимальный выбор для большинства проектов.

Где будет топка?
Топка внутри парной. Классика жанра: вы подкидываете дрова, не отрываясь от процедур, и наблюдаете за игрой огня через стекло печи прямо в парилке.

Какой дизайн защиты печи выберем?
Базовая защита из минерита. Надежный и безопасный материал, который защищает стены от нагрева.

Какую модель печи выберем?
Саяны Inox Витра (ТМФ). Мощная печь-сетка для просторных парных до 18 куб.м. Стильный прозрачный экран «Витра» позволяет любоваться живым огнём прямо из парной. Жаростойкая сталь, открытая сетчатая каменка и продуманная конвекция обеспечивают равномерный жар и насыщенный пар. Российское производство — надёжность, проверенная годами.

Какого цвета будет дымоход?


Какое окно поставим в комнате отдыха?
Представьте: вы пьете чай после парения и смотрите на свой сад. Окно с двухкамерным стеклопакетом и тонировкой сохранит тепло и приватность, добавив уюта.
- Фрамуга (открытие на себя) для проветривания
- Двухкамерный стеклопакет с тонировкой
- Профиль с внешней ламинацией

Нужно ли дополнительное окно в стене?


Какие окна будут в парной?



Какую мебель добавим для удобства?



Какой вариант душевой вам подходит?
Изолированное пространство для комфортного мытья. Включает: разуклонный пол с гидроизоляцией и сливом — никакой сырости, только чистота и порядок.
Душевая, совмещённая с проходом из парной — удобный лаконичный маршрут. Включает: разуклонный пол с гидроизоляцией и сливом — надёжная защита от влаги на годы вперёд.

Какие опции по сантехнике нужны?






Что по электрике и розеткам?
В базовую цену уже включено:
- Вся проводка из негорючего кабеля ВВГнг (ГОСТ) — безопасно и надёжно
- Заземление по всей бане — соответствие нормам электробезопасности
- Освещение во всех помещениях
- 1 розетка в комнате отдыха






Покрытие пола
Выберите, каким будет финишное покрытие пола в вашей бане



Будем утеплять пол?
Что входит в утепление пола:
- ✦Каменная вата 150 мм — надёжный утеплитель, не горит, не боится влаги и отлично держит тепло даже в сильные морозы
- ✦Ветрозащита — специальная мембрана защищает утеплитель от продуваний снизу
- ✦Защита от грызунов — металлическая сетка по периметру, чтобы утеплитель всегда оставался в целости
В какой цвет покрасим баню?









Какой цвет выберем для торцов и наличников?

Какой цвет кровли подойдет к вашему участку?




На что будем ставить баню?


Добавим приятных мелочей?






Финальные штрихи для идеального отдыха?
















Какой подарок выберете?




Куда доставим вашу баню?
Для рассчета цены доставки, выберите вначале ближайший к вам город отгрузки


Как вам удобнее оплатить?


